使用燃氣熱水器中毒原因分析 安全運行

使用燃氣熱水器中毒原因分析

摘 要:結合兩個實際案例,分析使用燃氣熱水器導致一氧化碳中毒的原因,提出了防范措施。關鍵詞:燃氣熱水器; 煙氣排放; 一氧化碳中毒Analysis Reason for Poisoning from Use of
NEW
閱讀全文
城市燃氣管道系統風險因素分析 安全運行

城市燃氣管道系統風險因素分析

摘 要:以美國城市燃氣管道系統事故統計數據為例,將導致管道事故的風險因素按照7個類型進行分類,分析各個風險因素導致的管道事故數量以及產生的后果,對各個風險因素的風險進行
NEW
閱讀全文

鋼質燃氣管道冬季施工要點

摘 要:對冬季鋼質燃氣管道焊接、焊縫補口防腐、管道吊裝和下管以及施工現場人員管理進行了探討。關鍵詞:冬季施工; 鋼質燃氣管道; 焊接; 防腐; 吊裝Construction Elements of
NEW
閱讀全文

地下燃氣管道運行安全的影響因素及措施

摘 要:對影響地下燃氣管道運行安全的主要因素進行分析,提出了加強地下燃氣管道運行安全的措施。關鍵詞:地下燃氣管道; 運行安全; 影響因素; 措施Influence Factors and Measure
NEW
閱讀全文
LPG管道供氣小區設施氮氣置換過程控制 安全運行

LPG管道供氣小區設施氮氣置換過程控制

摘 要:分析LPG瓶組氣化站供氣小區管網、戶內設施氮氣置換過程中的主要問題和對策,探討管網置換的原則、順序,介紹了置換前的準備工作和置換步驟。關鍵詞:LPG瓶組氣化站; 管網;
NEW
閱讀全文

天然氣多氣源混輸系統的安全性分析

摘 要:天然氣省級管網是一個多氣源混輸系統,存在氣源多元化、壓力超高壓化、管網結構復雜的特點,系統運行過程中可能出現輸氣能力、接收能力、調峰與氣質互換性方面的安全性問
NEW
閱讀全文
LPG加氣站儲罐區火災爆炸危險性評價 安全運行

LPG加氣站儲罐區火災爆炸危險性評價

摘 要:介紹LPG的性質和道化學火災、爆炸危險指數評價法的評價程序,利用道化學火災、爆炸危險指數評價法對廣州某LPG加氣站儲罐區的火災、爆炸危險性進行定量評價。評價結果表
NEW
閱讀全文
地下燃氣管道防爆與應急處置 安全運行

地下燃氣管道防爆與應急處置

一、概述 燃氣泄漏不像水泄漏、油泄漏那樣直觀、明顯,有其特有的隱蔽性,尤其是微量滲漏更是難以發現。 燃氣管道投入運行后,因腐蝕、管道接口、密封材料老化、安裝質量不良、
NEW
閱讀全文
家用燃氣具控制功能的安全解析 安全運行

家用燃氣具控制功能的安全解析

摘 要:本文論述了家用燃氣燃燒器和燃氣器具控制功能的安全等級的特點及如何通過功能安全的失效分析對安全等級進行分類。關鍵詞:燃氣具 功能安全 失效分析 控制功能Functi
NEW
閱讀全文
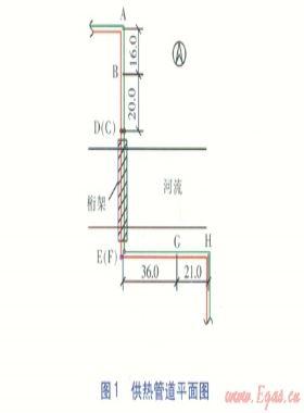
架空供熱管道AutoPSA軟件設計計算 技術研究

架空供熱管道AutoPSA軟件設計計算

摘 要:結合工程實例,采用AutoPSA應力分析軟件,對某段跨越河流架空供熱管道的一次應力、二次應力、熱位移、支座反力進行了分析計算。關鍵詞:跨越河流; 架空敷設; 供熱管道; 應
NEW
閱讀全文